Cyprus, Pernera, Famagusta

Вилла с 3 спальнями в Протарасе

Цена:

€960.000+НДС

ID: f38902

  • 185.00 m2

  • 3 Спальни

  • 2 Ванные

Получить бесплатную консультацию

Расположенный в живописном прибрежном районе Пернера, всего в нескольких минутах ходьбы от моря и песчаных пляжей, этот эксклюзивный комплекс трехспальных вилл предлагает гармоничное сочетание спокойствия и современного образа жизни. Окружённые природными ландшафтами, дома создают атмосферу уединения, оставаясь при этом вблизи развитой курортной инфраструктуры. Каждая вилла отличается выразительной архитектурой, где натуральные материалы органично сочетаются с современными решениями, передавая характер средиземноморского стиля. Светлые и просторные интерьеры тщательно продуманы и выполнены с использованием качественной отделки, а функциональные планировки идеально подходят для комфортной повседневной жизни. Внешние пространства продолжают концепцию гармонии и практичности: частные сады и бассейны создают прекрасные условия для отдыха, а крытая парковка обеспечивает дополнительное удобство и приватность. Локация является одним из ключевых преимуществ проекта - в непосредственной близости находятся отмеченные Голубым флагом пляжи, магазины, рестораны, кафе, а также все необходимые сервисы. Сочетая безупречное качество и элегантный стиль, эти виллы предлагают редкую возможность приобрести недвижимость в одном из самых привлекательных уголков Кипра.

Цена €960.000+НДС
Спальни 3
Ванные 2
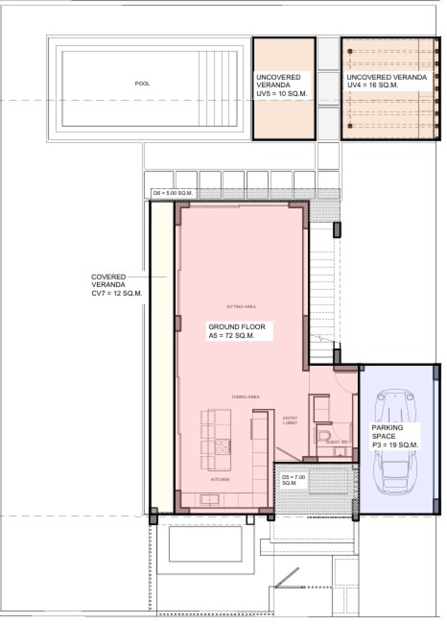
Внутренняя Площадь 152.00 m2
Крытые Веранды 33.00 m2
Крытая площадь 185.00 m2
Площадь участка 438.00 m2
Тип недвижимости Дом
Статус доступно
Тип Продажа
Адрес Cyprus, Pernera, Famagusta
Расстояние от школы 5.4 km
Расстояние от пляжа 150 m
Расстояние от центра города 5 km
Расстояние от аэропорта 65 km
Расстояние от больницы 7.5 km
Расстояние от университета 41 km
Расстояние от магазинов 1.2 km
 Вид на море       Кондиционирование воздуха     
План:
           
Стиль жизни:   Виллы на Кипре   

Карта

Получить бесплатную консультацию

Поиск Объектов

💬 Online
Support Chat
Loading . . .
😊
😊 😀 😁 😂 🤣 😃 😄 😅 😆 😡 😢 😭 😞 😔 😟 😎 😍 😘 🤔 😋 😴 🤗
Telegram WhatsApp Viber