Cyprus, Potamos Germasogeias, Limassol

2 Bedroom Apartment in Germasogeias, Limassol

Price:

€660.000+VAT

ID: p67600

  • 102.00 m2

  • 2 Bedrooms

  • 2 Bathrooms

Get Free Consultation

Tucked away in the prestigious Germasogeia area of Limassol, this boutique residential development redefines elegant urban living. Comprising only twelve meticulously designed apartments, the project offers a rare blend of privacy, comfort, and contemporary luxury in one of the city’s most desirable neighborhoods. With lush surroundings and proximity to high-end restaurants, chic cafés, and the sparkling Mediterranean, residents enjoy a tranquil lifestyle without sacrificing convenience. Just a short walk or drive connects you to elite schools, renowned supermarkets, pharmacies, and the beach. Each apartment is crafted with premium materials and boasts high ceilings, floor-to-ceiling thermal sliding doors, and top-tier European sanitary ware. A central VRV air-conditioning system and energy-efficient technologies like photovoltaic panels and heat pump boilers ensure year-round comfort and sustainability. Residents also benefit from exclusive shared amenities, including a swimming pool, sauna, fully equipped gym, and a dedicated study room for remote work. Secure parking with face-recognition access and EV charging provisions complete the offering. This is not just a home—it's a modern sanctuary for those who value refined living in a vibrant, cosmopolitan setting.

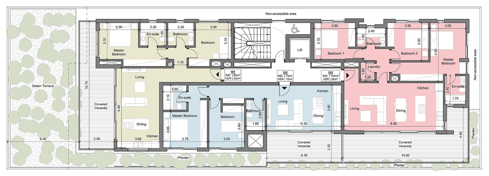
Price €660.000+VAT
Bedrooms 2
Bathrooms 2
Floor 1
Internal Area 80.00 m2
Covered Verandas 22.00 m2
Covered Area 102.00 m2
Uncovered Verandas 4.00 m2
Total area 114.00 m2
Common area 8 m2
Property Type Apartment
Status Available
Type For Sale
Address Cyprus, Potamos Germasogeias, Limassol
Distance From School 400 m
Distance From Beach 1 km
Distance From City Centre 5.4 km
Distance From Airport 62.4 km
Distance From Hospital 1 km
Distance From University 5.8 km
Distance From Shops 1 km
 Heating       Air conditioning     
Plan:
     
Lifestyle:   Apartments in Cyprus   

Map

Get Free Consultation

Search Property

X
💬 Online
Support Chat
Loading . . .
😊
😊 😀 😁 😂 🤣 😃 😄 😅 😆 😡 😢 😭 😞 😔 😟 😎 😍 😘 🤔 😋 😴 🤗
Telegram WhatsApp Viber